portfolio
Заказать звонок
Пн-Пт 9:00 - 18:00
ул. Магнитогорская, д. 30, офис 404

Завод металлоизделий ТАВРОС – итальянский стиль.

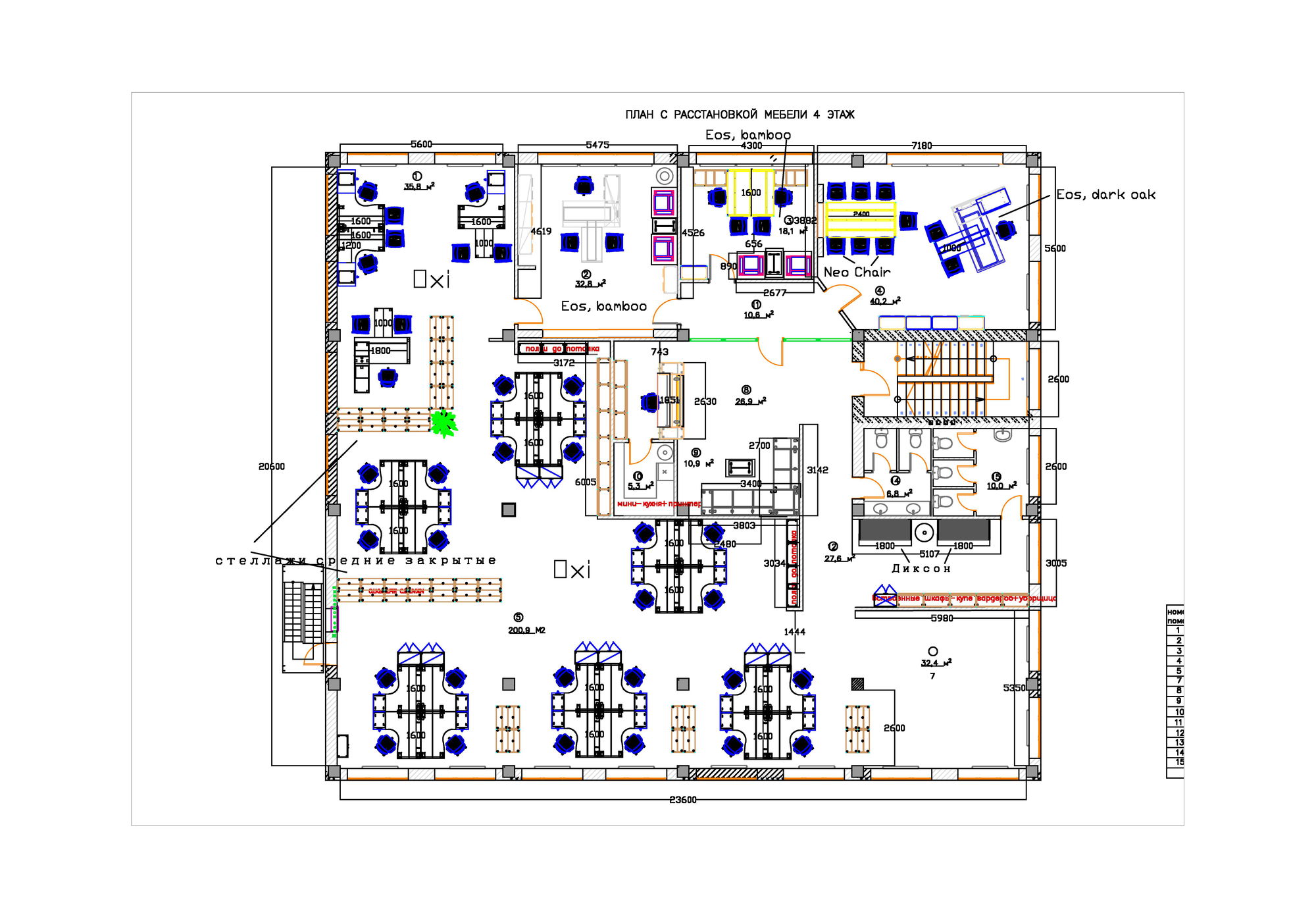
Реализация проекта по оснащению под ключ офисной мебелью, компании производящей металлопрокат ТАВРОС.

К нам за комплектом стильной мебели обратилась компания, которая производит металлопрокат, ТАВРОС. Мы предложили несколько вариантов планировки.

Основываясь на выборе заказчика, нами было обустроено более 40 рабочих мест. Для данного заказа мы решили использовать итальянскую офисную мебель Oxi. Также были использованы кабинеты руководителей EOS. Переговорная мебель серии Format, кресла Neo Chair и Chairman отлично вписались в интерьер офиса. В холле расположилась стойка администратора NICE. Мягкую зону дополнили уютные диваны Прага от Юнитал.

Использовалась мебель: